PHÒNG KINH DOANH NAM LONG
PHÒNG KINH DOANH NAM LONG
PHÒNG KINH DOANH NAM LONG
PHÒNG KINH DOANH NAM LONG
PHÒNG KINH DOANH NAM LONG
PHÒNG KINH DOANH NAM LONG
BIỆT THỰ VALORA KYKIO
Khu biệt thự Valora Kikyo số lượng chỉ 110 căn biệt thự, thuộc dự án Kikyo Residence được chủ đầu tư Nam Long cùng Hankyu Realty và Nishi Nippon Railroad hợp tác phát triển.
VALORA KIKYO VÀ NĂM ĐIỀU KHÁC BIỆT
Vị trí “độc tôn” là điểm giao kết nối các tuyến đường trung tâm của Quận 9: đường Vành đai 2, Liên Phường, Đỗ Xuân Hợp và cao tốc Long Thành – Dầu Dây.
Mật độ xây dựng thấp kỉ lục chỉ 16,6%.
Tiện ích nhân ba: trải dọc sông Rạch Chiếc, sở hữu hơn 15.000m2 hồ cảnh quan, quảng trường, trường tiểu học 1 hecta, câu lạc bộ Gym, Yoga, hồ bơi…
An ninh 3 lớp: biệt thự đơn lập nằm trong khu quy hoạch kép Kikyo Residence 5,3 hecta và Nam Long – Phú Hữu lên đến 17,5 hecta với cộng đồng cư dân tri thức và thành đạt.
Được phát triển bởi Nam Long 26 năm kinh nghiệm và đối tác Nhật Bản Nishi Nippon Railroad với hơn 100 năm kinh nghiệm.
TỔNG QUAN DỰ ÁN KHU BIỆT THỰ VALORA KIKYO
Valora Kikyo là một dự án thuộc dòng sản phẩm biệt thự, nhà phố “vừa sức mua” hội đủ 3 tiêu chí: Peaceful (Sống là an), Proficient (Thiết kế vượt trội), Perspective (Nâng tầm cuộc sống)
- Chủ đầu tư: Tập đoàn Nam Long Gourp hai nhà đầu tư đến từ Nhật Bản Hankyu và Nishitetsu
- Diện tích đất: nằm trong khu quy hoạch kép Kikyo Residence 5,3 hecta và Nam Long – Phú Hữu lên đến 17,5 hecta
- Mật độ xây dựng: 16,6% tổng diện tích dự án
- Diện tích : 110 căn biệt thự đơn lập với 4 diện tích:
- 55 căn LOẠI A: 130,3 m2 ( 13m x 12,5m )
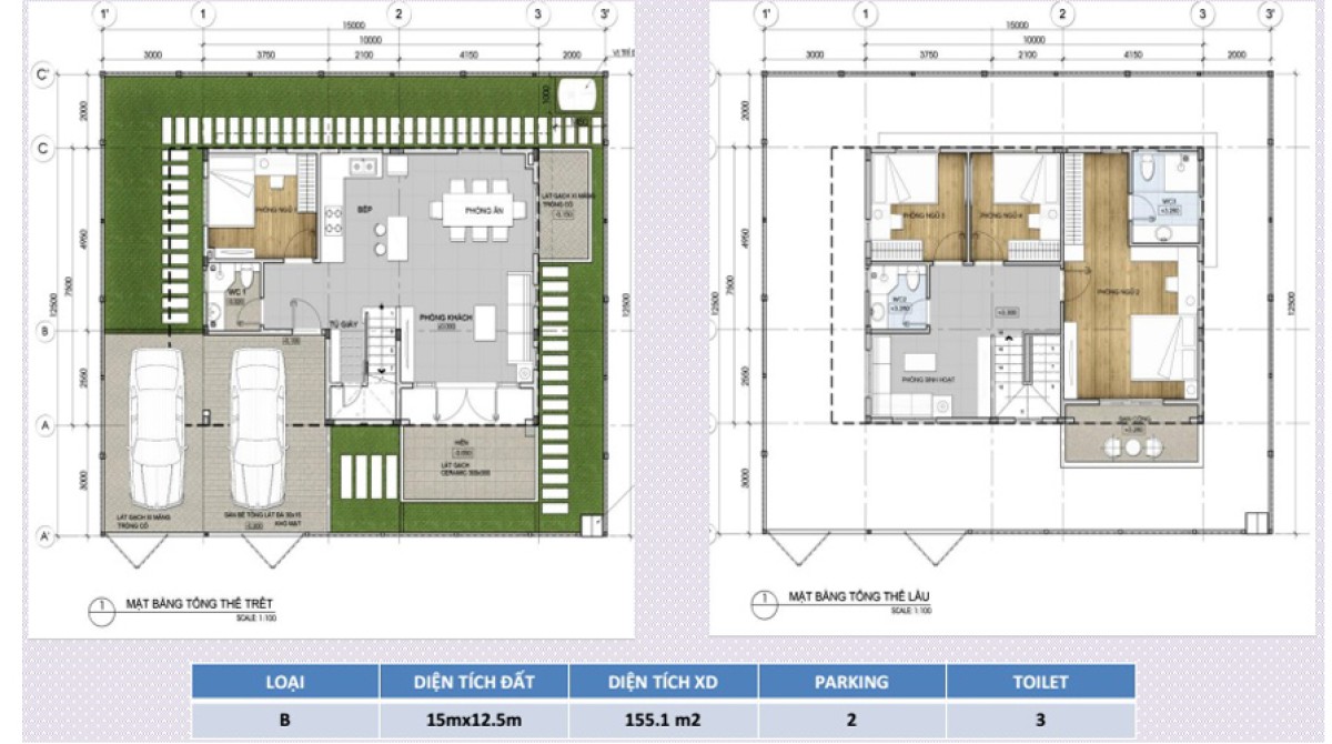
- 39 căn LOẠI B: 155,1 m2 ( 15m x 12,5m )
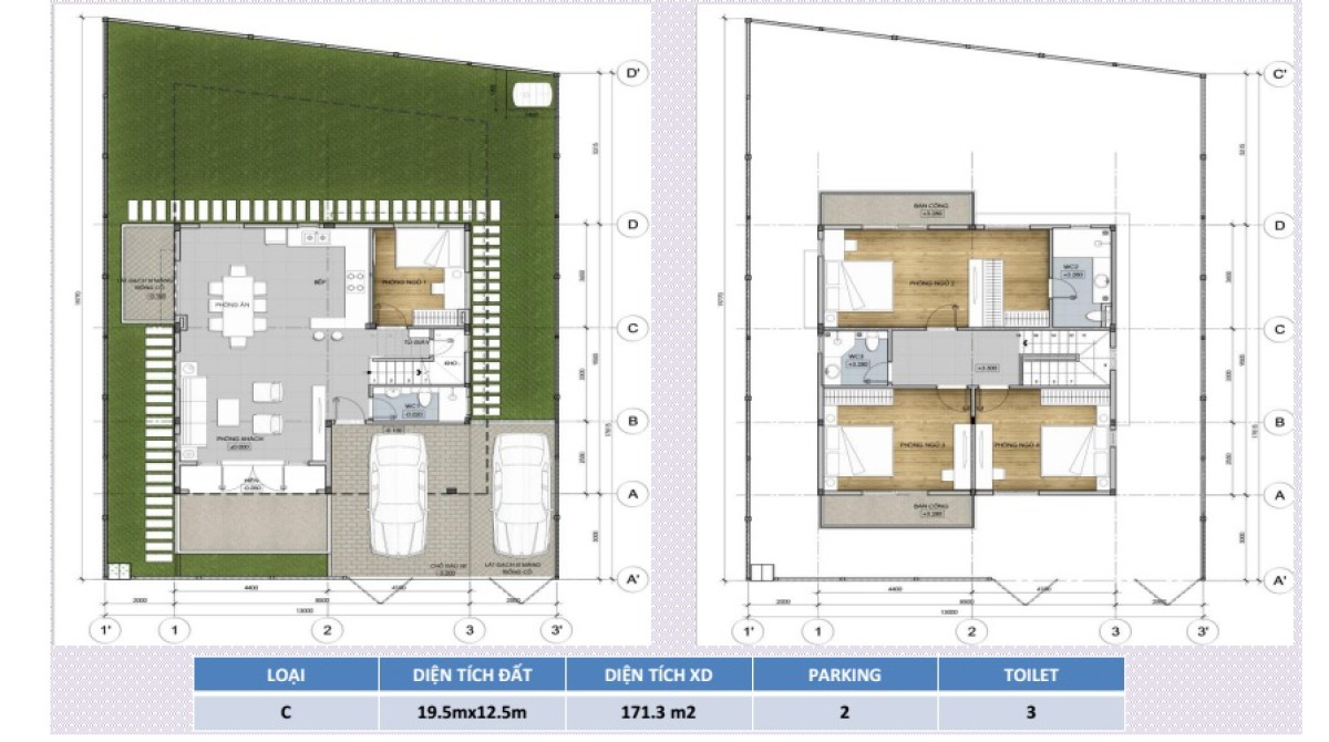
- 15 căn LOẠI C: 171,3 m2 ( 13m x 20m )
- 1 căn LOẠI D: 171,1 m2 ( 13m x 24,4m )
- Bàn giao: Đã nhận nhà Tháng 12/2017
- Pháp lý: sỗ hồng, sở hữu lâu dài

Vị trí dự án
VALORA KIKYO NẰM Ở VỊ TRÍ ĐỘC TÔN
Được bao bọc bởi bốn tuyến đường chính: đường Vành đai 2, Liên Phường, Đỗ Xuân Hợp và cao tốc Long Thành – Dầu Giây; Valora Kikyo sở hữu vị trí độc tôn tại trung tâm của những dự án cao cấp nhất Quận 9.
Tại đây, chỉ mất 15 phút để vào Quận 1, 10 phút sang khu đô thị mới Thủ Thiêm, Quận 2, 5 phút đến khu Công nghệ cao Quận 9 và đại học Fullbright tương lai; ngay trong tầm đi bộ để đến trường tiểu học hơn 1 hecta… Có thể nói Valora Kikyo là một trong những dự án sở hữu vị trí kết nối bậc nhất so với các dự án biệt thự của thị trường khu Đông.
Khu biệt thự Valora Kikyo nằm trong dự án Kikyo Residence gồm 110 căn biệt thự Valora Kikyo, 234 căn hộ Flora Kikyo và gần 1300 căn hộ EHomeS với hàng loạt các tiện ích cao cấp, hạ tầng phát triển đồng bộ, tạo giá trị gia tăng lâu dài cho khu biệt thự.
Mặt bằng dự án
Biệt thự Valora Kikyo số lượng 110 căn biệt thự đơn lập, với 4 loại diện tích: 55 căn LOẠI A: 130,3 m2 (13m x 12,5m); 39 căn LOẠI B: 155,1 m2 (15m x 12,5m); 15 căn LOẠI C: 171,3 m2 (13m x 20m), 1 căn LOẠI D: 171,1 m2 (13m x 24,4m) phù hợp với từng nhu cầu không gian sống và tài chính của mỗi cá nhân và từng gia đình.
Thiết kế dự án
Tiện ích dự án
Là dự án thành phần của Kikyo Residence 5,3 hecta trong khu đô thị Nam Long – Phú hữu 17,5 hecta, Valora Kikyo được thừa hưởng toàn bộ hệ thống an ninh và tiện ích của 3 vòng dự án gồm: trường tiểu học 1 hecta, hệ thống hồ cảnh quan nội và ngoại khu 15.000m2, quảng trường 3.200m2, cluphouse, cafeteria, gym yoga, hồ bơi, đường chạy bộ ven sông 500m; khu vui chơi cho thiếu nhi và khu dưỡng sinh cho người lớn tuổi…
Đánh giá dự án
Một ngôi nhà theo phong cách Nhật mang tính thẩm mỹ cao gắn liền với ý tưởng tối giản trong cách thiết kế và bài trí. Các yếu tố tự nhiên như gió, ánh sáng, cây xanh, hoa tươi được phát huy tối đa mang đến cảm giác như thiên nhiên ùa vào trong ngôi nhà hiện đại. Đố là yếu tố quan trọng giúp không khí và năng lượng có thể dễ dàng chảy tràn khắp nới, tạo cảm giác tươi mới và thư thái.
Người ta nói rằng nếu có một nơi để trở về cùng những người yêu thương, đó là hạnh phúc. Còn gì tuyệt vời hơn sau mỗi ngày làm việc, bạn có một nơi “mong muốn được trở về” như Valora Kikyo để hòa mình vào thiên nhiên và cùng những người yêu thương tận hưởng cuộc sống yên bình và trọn vẹn.
PHÒNG KINH DOANH NAM LONG
Để nhận bảng giá và thông tin dự án, quý khách vui lòng điền thông tin đầy đủ vào mẫu bên cạnh, ghi rõ dự án và yêu cầu của mình.
Hoặc liên hệ trực tiếp Hotline/Zalo/Viber của phòng kinh doanh:
Hotline: 0934 754 038 - 0935 568 038
Zalo chat: https://zalo.me/0934754038
Website: www.namlonghcm.com.vn










